In vendita casa al piano terra in una zona tranquilla di Labin
3.708.000 Kn
- Codice 28321
- Localita Labin
- Superficie immobile 143 m2
- Superficie particela 1073 m2
- Numero di camere 3
- Vista sul mare No
- Distanza dal centro1000 m
- Distanza dal mare5000 m
- Numero di piani : 1
- Numero di bagni : 2
- Efficienza energetica : A+
- Anno di costruzione : 2025
EXTRA
- Parcheggio
ATTREZZATURE
- Aria condizionata
DESCRIZIONE DELL IMMOBILI
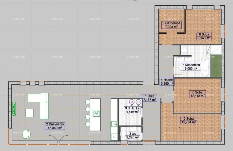
In offerta c'è una moderna casa a piano terra con una superficie abitabile di 143 m², situata in una posizione estremamente tranquilla, ma comunque a breve distanza dal centro storico di Labin, raggiungibile anche a piedi.
L'interno della casa è progettato con un focus sul comfort e sulla funzionalità. La parte centrale è costituita da uno spazio giorno aperto che collega la cucina, la sala da pranzo e il soggiorno. Inoltre, la proprietà dispone di una camera da letto principale con cabina armadio, altre due camere, due bagni e un pratico ripostiglio.
Nella dotazione si è prestata attenzione alla qualità e all'efficienza energetica: è stato installato riscaldamento a pavimento tramite pompa di calore, un'ottima coibentazione termica e due unità di climatizzazione. La casa ha un certificato energetico di classe A+.
Il giardino di 1073 m² offre ampio spazio per la creazione di un orto, di una piscina o di ulteriori strutture secondo i propri desideri.
È un'immobile ideale per una vita familiare tranquilla o come investimento per affitti turistici.
La distanza dal centro è di soli 1 km, mentre le prime spiagge si trovano a meno di 5 km.
Per ulteriori informazioni, si prega di contattare:
Azra
+385 91 611 5706
+385 98 420 885
azra@almadominvest.com
SI CONSIGLIA
Villa di lusso a Albona!
(27993) Labin550.000 €
La bellissima casa con piscina e giardino vicino a Labin
(27344) Labin590.000 €
Casa Labin
(28125) Labin399.000 €
Una bella casa moderna indipendente
(27529) Labin550.000 €
Villa di lusso a Albona!
(27390) Labin550.000 €
In vendita villa di lusso con piscina in un'oasi verde nei dintorni di Labin
(27386) Labin515.000 €






