Prodaja - dva građevinska zemljišta s pravomoćnim dozvolama za izgradnju kuća s bazenom, Marčana! Gradnja može početi odmah!
1.650.000 Kn
- Šifra 25579
- Lokacija Marčana
- Površina zemljišta 1292 m2
- Udaljenost od centra 3700
- Udaljenost od mora 0
- Pogled na more Ne
- Izgradivost : n/a
- Zemljište : Građevinsko
OPIS NEKRETNINE
Prodajemo dvije odvojene građevinske parcele, svaka s izrađenim glavnim projektom i pravomoćnom građevinskom dozvolom za modernu prizemnu kuću s bazenom. Gradnja može započeti odmah.
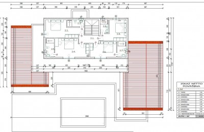
PARCELA 1
Površina 681 m². Predviđena prizemnica s bazenom dimenzija 8,5 × 3,5 m. U projektu su dva parkirna mjesta i hortikulturno uređeno dvorište.
PARCELA 2
Površina 610 m². Predviđena prizemnica s bazenom istih dimenzija, dva parkirna mjesta i uređene zelene površine. Struja je plaćena, voda se nalazi pored parcele.
Lokacija:
Mirno istarsko naselje, idealno za obiteljski život ili turistički najam. 10 minuta do Medulina, 15 minuta do Pule i 10 minuta do plaže.
Ova nekretnina predstavlja odličnu priliku za investitore koji žele brzu realizaciju gradnje, privatne kupce koji žele modernu prizemnicu s bazenom ili razvoj dvije vile za turistički najam.
Napomena : Parcele se mogu kupiti i odvojeno.
Cijena jedne parcele iznosti 110.000 eura.
Postoji mogućnost kupnje i poljoprivrednog zemljišta od 3700 m².
PREPORUČUJEMO
Prodaja građevinskog zemljišta, Filipana
(16267) Marčana, Filipana260.827 €
MARČANA! LOBORIKA - GRAĐEVINSKO ZEMLJIŠTE S MASLINIKOM
(28735) Marčana206.000 €
Prodaja- dvije građevinske parcele na lijepoj lokaciji u neposrednoj blizni centra, Krnica!
(28730) Marčana257.500 €
Prodaje se građevinsko zemljište površine 3785 m2
(27255) Marčana, Rakalj210.000 €
MARČANA! LOBORIKA - GRAĐEVINSKO ZEMLJIŠTE S MASLINIKOM I VOĆNJAKOM
(28736) Marčana257.500 €
Prodaja građevinskog zemljišta u Kavranu, Marčana
(15720) Marčana, Kavran180.000 €






