New residential project - apartments for sale in an excellent location, Pula!
1.661.100 Kn
- Code 28453
- Location Pula
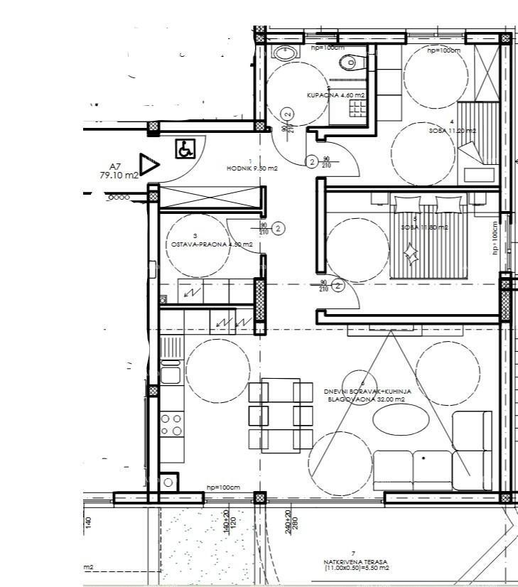
- Building size 79.10 m2
- Number of rooms 2
- Floor Ground floor
- Seaview No
- Distance from center0 m
- Distance from sea0 m
- Number of floors : 5
- Number of bathrooms : 0
- Energy efficiency : Not specified
- Year of construction : 2026
ADDITIONALLY
- Parking
EQUIPMENT
- Air conditioning system
REAL ESTATE DESCRIPTION
New on the market!
A flat is for sale in a new residential project in an excellent location.
The apartment is located on the ground floor and consists of a hallway, 2 bedrooms, a bathroom, a living room with a kitchen and dining area, a storage/laundry room, and a covered terrace.
The apartment comes with 2 parking spaces available for an additional fee of €18,000 each (€36,000 for both), and there is also an option to purchase additional storage.
The planned completion of construction is by the end of 2027.
We are accepting reservations.
For more information, please contact:
Azra
+385 91 611 5706
+385 98 420 885
azra@almadominvest.com
WE RECOMMEND
Apartments for sale in a new residential project in an exclusive location, 300 m from the sea, Pula, Veruda!
(27066) Pula, Centar244.000 €
Apartment Pula
(27334) Pula, Štinjan244.000 €
New building in Šišan, a village about 7 km from the city of Pula.
(28068) Pula, Centar238.000 €
Apartments for sale in a new residential project in an exclusive location, 300 m from the sea, Pula, Veruda!
(26082) Pula, Centar193.792 €
Apartments in a new Construction, Pula, City Center! B2
(28584) Pula, Centar225.000 €
Top location! Apartment for sale in close proximity to the city center, Pula!
(25565) Pula, Centar248.668 €






