Appartamento in vendita in una nuova costruzione, Tar
1.912.500 Kn
- Codice 28379
- Localita Poreč
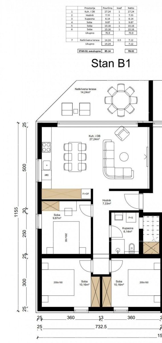
- Superficie immobile 78.02 m2
- Numero di camere 3
- Piano Pianterreno
- Vista sul mare No
- Superficie particela : 200 m2
- Distanza dal centro0 m
- Distanza dal mare0 m
- Numero di piani : 2
- Numero di bagni : 1
- Efficienza energetica : A+
- Anno di costruzione : 2024
ATTREZZATURE
- Aria condizionata
DESCRIZIONE DELL IMMOBILI
Appartamento in vendita a Tara vicino a Parenzo (8 km).
Per la sua posizione e contenuti, questa proprietà è un investimento ideale per la vita familiare così come per le vacanze o l'affitto turistico.
L'appartamento, classificato B1, si trova al piano terra, 78,02 mq, dispone di giardino (per jacuzzi, cucina estiva, camino, ecc.). L'appartamento è composto da ingresso, cucina e soggiorno, 3 camere da letto, bagno, dispensa, terrazzo.
Oltre alla costruzione di alta qualità, l'edificio sarà dotato di attrezzature di alta qualità come isolamento termico dell'edificio (10 cm), isolamento del tetto 20 cm, falegnameria in alluminio e PVC di alta qualità, ogni appartamento dispone di condizionatori d'aria, alta -ceramiche di qualità (il cliente sceglie ceramica o laminato), porta d'ingresso antieffrazione e tagliafuoco, bagno attrezzato con sanitari, posti auto si trovano davanti all'edificio (è possibile acquistare 2 posti auto).
Tutti gli appartamenti dispongono di una terrazza con una bellissima vista sulla natura e sulla pineta.
Tutti i servizi necessari per la vita, come scuola, asilo, farmacia, ufficio postale, ristoranti, negozi, clinica, si trovano a un minuto di macchina.
Inizio lavori 1° mese del 2024.
Il completamento previsto dei lavori è il 12° mese del 2024.
Per ulteriori informazioni, contattare:
Azra Valjevac
+385 91 6115706
+385 98 420 885
azra@almadominvest.com
SI CONSIGLIA
POREČ – MUSALEŽ, VENDITA APPARTAMENTO CON GALLERIA E POSTO AUTO
(27183) Poreč249.000 €
Vendita di un appartamento ben arredato con due camere da letto a Parenzo
(25990) Poreč220.000 €
Nuova costruzione! Appartamento, 70 m2, con vista mare e due posti auto, Tar!
(27786) Poreč, Tar260.000 €
Nuova costruzione! Appartamento, 67 m2, con vista mare e due posti auto, Tar!
(27788) Poreč, Tar255.000 €
Vendita di appartamenti in una moderna nuova costruzione, nel centro, a Parenzo!
(26132) Poreč241.015 €
Nuova costruzione! Appartamento, 70 m2, con vista mare e due posti auto, Tar!
(27783) Poreč, Tar260.000 €






