PULA, Veldebek - Prodaja stana u prizemlju s vrtom, novogradnja / C1
1.935.540 Kn
- Šifra 26844
- Lokacija Pula
- Površina objekta 71.07 m2
- Broj soba 2
- Kat Prizemlje
- Pogled na more Ne
- Površina zemljišta : 10 m2
- Udaljenost od centra0 m
- Udaljenost od mora0 m
- Broj etaža : 3
- Broj kupatila : 1
- Energetska učinkovitost : Nije određeno
- Godina izgradnje : 2025
DODATNO
- Parkiralište
OPREMLJENOST
- Klima
OPIS NEKRETNINE
Pula, jedan od najpoželjnijih gradova u Istri, nudi spoj mediteranskog načina života, razvijene infrastrukture i blizine mora.
Valdebek je mirno i traženo stambeno naselje koje se kontinuirano razvija te je sve češći izbor za obiteljski život i dugoročnu investiciju.
Prodaje se stan u kvalitetnoj novogradnji, zgrada C, stan C1, smješten u prizemlju, s pripadajućim vrtom. Objekt je u potpunosti izgrađen, a izdavanje uporabne dozvole očekuje se uskoro.
Stan je opremljen suvremenim i energetski učinkovitim sustavima grijanja i hlađenja:
* Visokokvalitetni Daikin sustav grijanja i hlađenja, s unutarnjim jedinicama niskog profila postavljenima uz pod (radijatorski tip), za ugodnu i ravnomjernu temperaturu tijekom cijele godine
* Podno grijanje u dnevnom boravku, hodniku i kupaonici
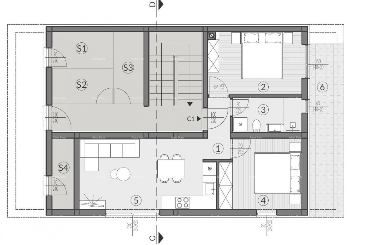
RASPORED PROSTORIJA
Hodnik: 2,94 m²
Spavaća soba: 11,49 m²
Kupaonica: 4,73 m²
Spavaća soba: 10,87 m²
Dnevni boravak s kuhinjom i blagovaonicom: 18,43 m²
Natkrivena terasa: 11,45 m² (obračunato 5,73 m²)
Neto površina stana: 54,19 m²
VANJSKI I DODATNI PROSTORI
Vrt: 109,18 m² (obračunato 10,92 m²)
Parkirno mjesto PM1: 12,50 m² (obračunato 3,12 m²)
Spremište S4: 2,99 m² (obračunato 2,24 m²)
UKUPNA NETO POVRŠINA - 70,47 m²
INFO:
+385 91 6115706
+385 98 420885
azra@almadominvest.com
PREPORUČUJEMO
Stan u centru Pule. Pješačka zona.
(28169) Pula, Centar220.000 €
Prodaja stanova u modernoj novogradnji s zajedničkim bazenom!
(28238) Pula, Štinjan221.753 €
Prodaja - Moderan stan u novom privatnom stambenom kompleksu u Šijani, Pula! D-B
(28277) Pula, Centar243.000 €
Monvidal Pula, novi projekt! Višestambena, moderna zgrada s liftom, blizu centra. Stan s parkirnim mjestom i ostavomS36
(28415) Pula, Centar225.653 €
Novi stambeni projekt na odličnoj lokaciji; Pula! S1, Z6
(26144) Pula, Centar261.400 €
Pula, novi projekt! Višestambena, moderna zgrada s liftom, blizu centra. Prodaja stana s parkirnim mjestom i ostavom. S53
(26874) Pula, Centar241.494 €






