Prodaja stanova u izgradnji - novi stambeni kompleks, Pula!
1.275.000 Kn
- Šifra 27983
- Lokacija Pula
- Površina objekta 48 m2
- Broj soba 1
- Kat Prizemlje
- Pogled na more Ne
- Površina zemljišta : 46.53 m2
- Udaljenost od centra0 m
- Udaljenost od mora0 m
- Broj etaža : 3
- Broj kupatila : 1
- Energetska učinkovitost : Nije određeno
- Godina izgradnje : 2025
DODATNO
- Parkiralište
OPIS NEKRETNINE
NOVOGRADNJA – MANJI STAMBENI KOMPLEKS U IZGRADNJI (3 ZGRADE U NIZU)
Na prodaju je manji stambeni kompleks u izgradnji koji se sastoji od tri moderne zgrade u nizu.
Svaka zgrada projektirana je kao stambena cjelina s ukupno četiri stana, raspoređenih kroz prizemlje i dva kata.
Stanovi su funkcionalnog rasporeda, s naglaskom na komfor, prirodno osvjetljenje i kvalitetne građevinske materijale. Svakom stanu pripada parkirno mjesto, a predviđena je i moderna energetski učinkovita oprema.
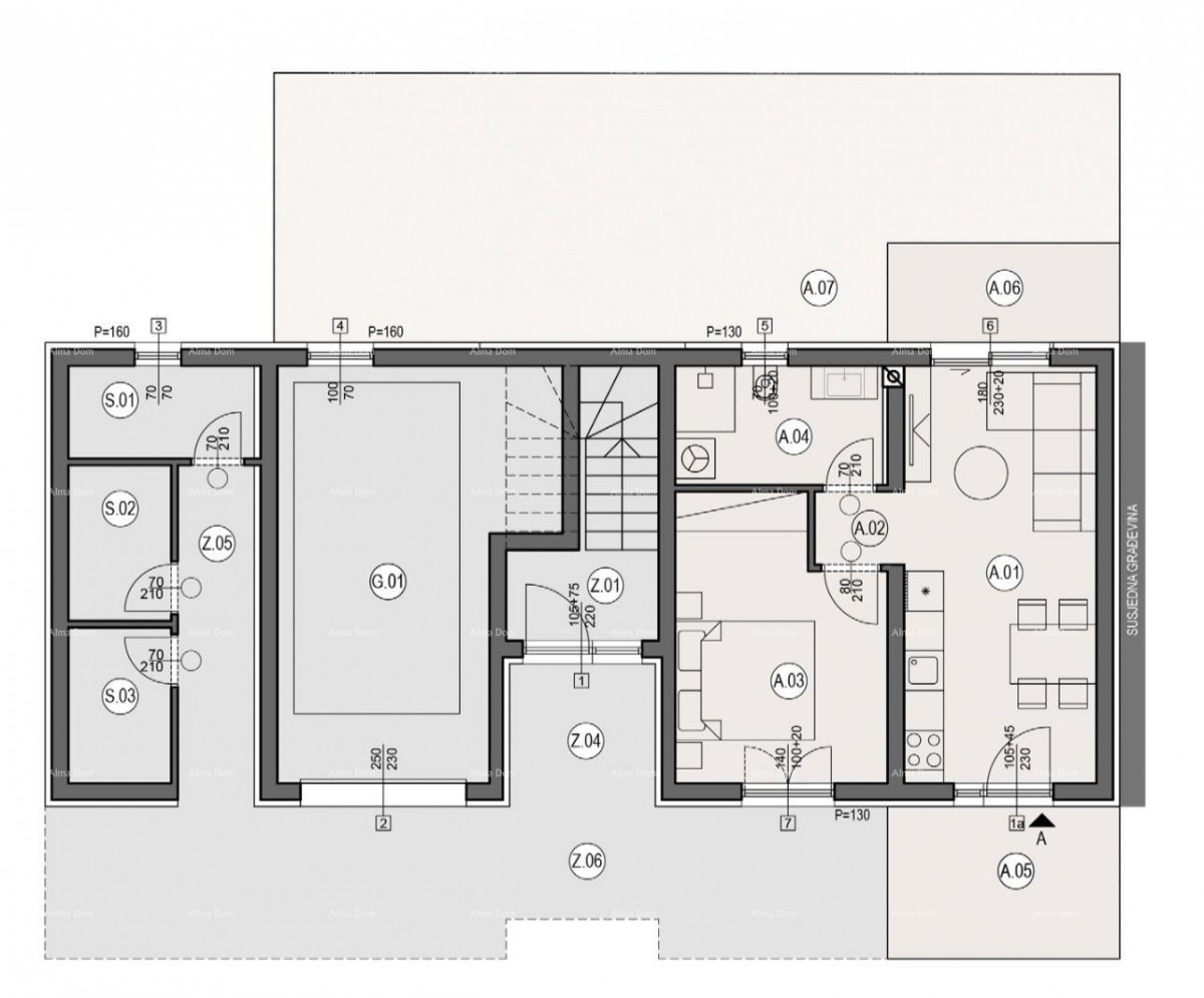
Stan A, nalazi se u prizemlju zgrade A i sastoji od: natkrivenog ulaza, dnevnog prostora s kuhinjom i blagavaonom, spavaće sobe, kupaone, hodnika, nenatkrivene terase i dvorišta.
Kompleks se nalazi na mirnoj lokaciji idealnoj za obiteljski život ili kao investicija za najam, s lakim pristupom svim bitnim sadržajima – trgovinama, školom, javnim prijevozom i plažama.
Projekt je u fazi izgradnje.
Stanu pripada ostava i parkirno mjesto.
Za dodatne informacije, molimo kontaktirajte:
Azra
+385 91 611 5706
+385 98 420 885
azra@almadominvest.com
PREPORUČUJEMO
Prodaja- stan u novom stambenom projektu, Pula, Veli Vrh!
(28295) Pula, Centar152.000 €
Stan s vrtom i parkirnim mjestom, blizina Pule 4 km.
(27839) Pula, Centar155.000 €
Pula, Višestambena, moderna zgrada s liftom, blizu centra. Započeta gradnja u neposrednoj blizini , trgovačkog centra City Mall.
(26743) Pula, Centar186.000 €
Prodajemo stan na odličnoj poziciji u Puli!
(28625) Pula, Centar189.000 €
Prodaja- stan na prvom katu, u novom stambenom kompleksu, Pula!
(26840) Pula, Centar182.000 €
Prodaja- stan u prizemlju, u novom stambenom kompleksu, Valdebek, Pula! Zg4 S1
(26864) Pula, Centar189.400 €






