Prodaja građevinske parcele s građevinskom dozvolom za izgradnju moderne obiteljske kuće, blizina Barbana!
675.000 Kn
- Šifra 24265
- Lokacija Barban
- Površina zemljišta 863 m2
- Udaljenost od centra 5000
- Udaljenost od mora 0
- Pogled na more Ne
- Izgradivost : n/a
- Zemljište : Građevinsko
OPIS NEKRETNINE
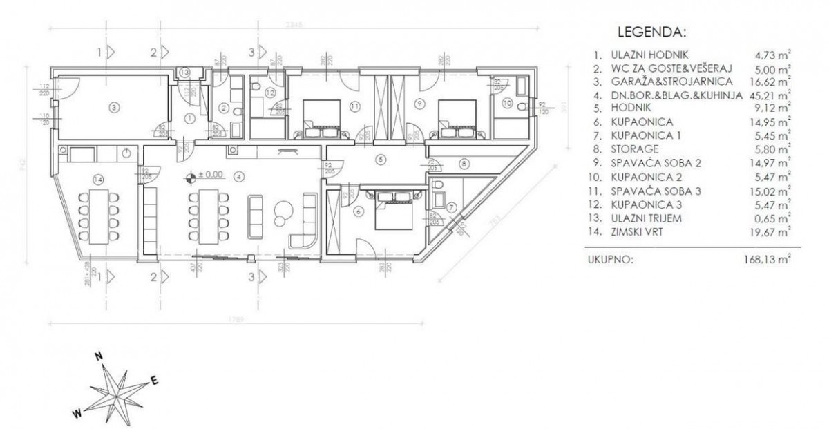
Na prodaju je građevinska parcela s pravomoćnom građevinskom dozvolom za izgradnju moderne obiteljske kuće, prizemnice.
Ovaj projekt svojom funkcionalnošću i dizajnom pruža savršenu ravnotežu između udobnosti i elegancije. Sastoji se od tri spavaće sobe i tri kupaonice, a visoki stropovi od 280 cm dodatno naglašavaju prozračnost i osjećaj prostranosti u cijelom domu.
U središtu interijera smješten je veliki dnevni boravak otvorenog koncepta od 45 m², ispunjen prirodnim svjetlom, koji se spaja s veličanstvenim infinity grijanom bazenom dimenzija 9,5 x 3,5 m i dubine 135 cm.
Grijani zimski vrt opremljenom vanjskom kuhinjom.
Kuća se nalazi na prostranoj parceli površine 863 m² s lijepo uređenim dvorištem i dva parkirna mjesta. Riječ je o savršenoj nekretnini za obitelji koje traže kvalitetan, miran i ugodan životni prostor.
Ova luksuzna obiteljska kuća pomno je osmišljena da zadovoljava potrebe dualne uporabe
- obiteljske kuće - kuće za odmor
- Dodatna unutrašnja prostorija za spremanje i odlaganje stvari
- Bicikle i oprema za rekreaciju na sigurnom u garaži olakšava i svakodnevni i turistički život.
Za dodatne informacije, molimo kontaktirajte:
Azra
+385 91 611 5706
+385 98 420 885
azra@almadominvest.com
PREPORUČUJEMO
BARBAN - Prodaje se građevinsko zemljište,1329 m2 / 300 m od centra
(24241) Barban82.400 €
Blizina Barbana! Parcela s projektom za kuću!
(27253) Barban99.000 €
Prodaja građevinske parcele s građevinskom dozvolom za izgradnju moderne obiteljske kuće, blizina Barbana!
(24325) Barban105.000 €
ISTRA, BARBAN - Građevinsko zemljište
(26076) Barban100.000 €
Građevinsko zemljište s projektom vile s bazenom, Rebići
(24782) Barban100.000 €
Barban, Građevinsko zemljište na prodaju, ukupno 3.440 m² (građevinsko 780 m²)
(26932) Barban90.000 €






