Građevinsko zemljište 680 m2 s pravomoćnom dozvolom, Svetvinčenat
1.072.500 Kn
- Šifra 28508
- Lokacija Svetvinčenat
- Površina zemljišta 680 m2
- Udaljenost od centra 0
- Udaljenost od mora 0
- Pogled na more Ne
- Izgradivost : n/a
- Zemljište : Građevinsko
OPIS NEKRETNINE
Na prodaju građevinsko zemljište površine 680 m² smješteno u mirnom naselju, općina Svetvinčenat, uz zeleni pojas koji osigurava privatnost i prirodno okruženje.
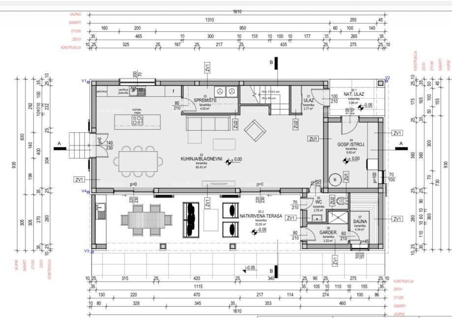
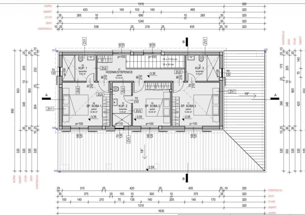
Zemljište dolazi s pravomoćnom građevinskom dozvolom za izgradnju obiteljske kuće s bazenom, ukupne površine 192 m².
Projekt uključuje:
3 spavaće sobe na katu
moderna obiteljska kuća s bazenom
funkcionalan i suvremen raspored prostora
Odlična prilika za izgradnju obiteljske kuće ili kuće za odmor u mirnom istarskom okruženju.
Za dodatne informacije, molimo kontaktirajte:
Azra
+385 91 611 5706
+385 98 420 885
azra@almadominvest.com
PREPORUČUJEMO
Građevinsko zemljište površine 1.600 m² u blizini Svetvinčenata
(26412) Svetvinčenat120.000 €
Prodaje se građevinsko zemljište, 504 m2, vile s bazenom u općini Svetvinčenat
(19071) Svetvinčenat129.000 €
Prodaja građevinskog zemljišta sa građevinskom dozvolom, Svetvinčenat!
(19885) Svetvinčenat145.000 €
Prodaje se građevinsko zemljiste 1829 m2, Čabrunići
(18192) Svetvinčenat, Čabrunići137.175 €
Prodaja -- atraktivno građevinsko zemljište s pravomoćnom građevinskom dozvolom, Svetvinčenat!
(24330) Svetvinčenat129.000 €
Građevinsko zemljište u Štokovcima, Svetvinčenat – Idealna prilika!
(28425) Svetvinčenat155.000 €






