Blizina Barbana! Parcela s projektom za kuću!
99.000 €
742.500 Kn
742.500 Kn
- Šifra 27253
- Lokacija Barban
- Površina zemljišta 784 m2
- Udaljenost od centra 0
- Udaljenost od mora 0
- Pogled na more Ne
- Izgradivost : n/a
- Zemljište : Građevinsko
OPIS NEKRETNINE
Blizina Barbana!
U ponudi je građevinska parcela, do asfaltne ceste.
Pravokutnog je oblika.
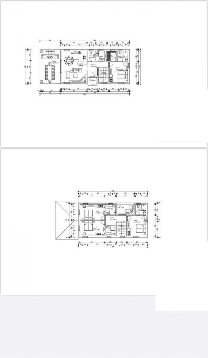
Projekt i građevinska dozvola za gradnju kuće prizemlje i kat. Mirna lokacija.
INFO:
azra@almadominvest.com
+385 91 6115706
jelena@alma-nekretnine.com
+385 98 323 264
PREPORUČUJEMO
Prodaja građevinske parcele s građevinskom dozvolom za izgradnju moderne obiteljske kuće, blizina Barbana!
(24325) Barban105.000 €
BARBAN - Zemljište za gradnju s projektom (kuća s bazenom), 15 minuta do mora
(22142) Barban95.000 €
BARBAN - Prodaje se građevinsko zemljište,1329 m2 / 300 m od centra
(24241) Barban82.400 €
ISTRA, BARBAN - Građevinsko zemljište
(26076) Barban100.000 €
Građevinsko zemljište s projektom vile s bazenom, Rebići
(24782) Barban100.000 €
Građevinsko zemljište 1.730 m² – Barban
(27549) Barban92.700 €






