Apartments for sale in a new business-residential project, Poreč, C302-building C
5.207.835 Kn
- Code 26460
- Location Poreč
- Building size 147.27 m2
- Number of rooms 3
- Floor 3
- Seaview No
- Distance from center3000 m
- Distance from sea1000 m
- Number of floors : 6
- Number of bathrooms : 2
- Energy efficiency : A+
- Year of construction : 2022
ADDITIONALLY
- Garage
- Parking
EQUIPMENT
- Air conditioning system
- Elevator
- Basement
REAL ESTATE DESCRIPTION
The residential-business building is divided into three units, the central, southern, and northern volumes. It will have a total of 78 apartments and 18 business units. The building has a swimming pool and an underground garage.
The apartments are sold on a "turnkey" basis, with a fully equipped bathroom (furniture and sanitary ware), floor coverings in all rooms (class 1 ceramics, laminate), installed electrical installations, built-in air conditioning, internal carpentry, external PVC or ALU carpentry, burglar-proof and fire-proof entrance doors, antenna system, UTP network, and white walls and ceilings.
Special attention was also paid to the design and arrangement of green areas.
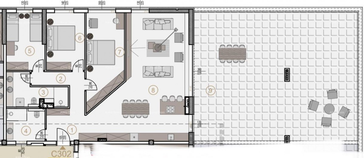
Apartment C302 is located on the 3rd floor of the central unit of the building and consists of:
Hallway, hall, kitchen+dining room+living room, 2 bathrooms, 3 bedrooms, and large uncovered terrace.
*Note: A garage parking space, as well as a storage room, are purchased additionally.
For more information, please contact:
Info:
Azra Valjevac
+385 91 6115706
+385 98 420885
azra@almadominvest.com
WE RECOMMEND
Poreč, Veli Maj, PENTHOUSE WITH PANORAMIC SEA VIEW
(27221) Poreč720.000 €
Sale of a luxurious duplex apartment with a pool, Tar! S2
(28219) Poreč577.000 €
Poreč, residential and commercial building under construction with apartments and underground garages
(27161) Poreč750.844 €
Poreč, residential and commercial building under construction with apartments and underground garages
(26308) Poreč577.907 €
Apartments for sale in a new business-residential project, Poreč, C303-building C
(27605) Poreč691.078 €
Luxury apartment in Poreč! New construction!!
(26640) Poreč681.503 €






